Estás a un paso de aumentar tus habilidades en proyectos Sanitarios con este curso de especialización.
Iniciamos: Lunes 26 de enero 2026.
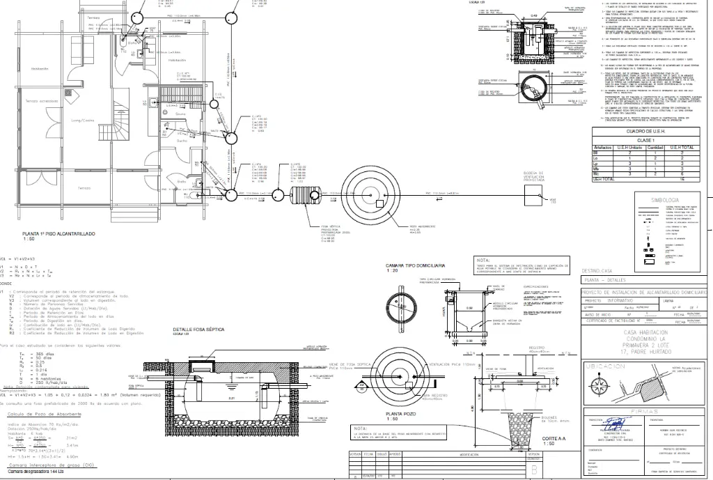
Curso Diseño, Proyectos de instalaciones Sanitarias sistema particular - Seremi de Salud.
¿Qué aprenderé en este curo?
Con este curso aprenderás a diseñar y calcular instalaciones de AP y AS, en todas sus áreas, confección de planos en AutoCad para la presentación formal ante las empresas sanitarias, evitando observaciones.
Confección de especificaciones técnicas y memoria de cálculo asociado a cada especialidad.
A demás aprenderás a gestionar tus propios proyectos en las distintas sanitarias y Seremi de salud.
No pierdas esta gran oportunidad.
🚀 ¡Impulsa tus habilidades y conocimiento al siguiente nivel!
Instructor: Paulo Fernández Catalán
Constructor Civil con más de 10 años de experiencia en infraestructuras sanitarias.
Especializado en la Inspección Técnica de Obras (ITO) y
consultoría técnica, aportando soluciones integrales para proyectos sanitarios
complejos. Cofundador de Hydrobim, una empresa innovadora en el
ámbito de la ingeniería sanitaria y la gestión de proyectos.
Acceso Sincrónico: Al inscribirte recibirás en tu correo electrónico un enlace personalizado de Google Meet para conectarte a las clases en vivo. Además, tendrás acceso a nuestra plataforma de formación, donde encontrarás todos los contenidos del curso, módulos y recursos complementarios, disponibles en cualquier momento y desde cualquier dispositivo.
Acceso 24/7: Disfrutarás de acceso ilimitado durante un año completo a la plataforma, lo que te permitirá avanzar a tu propio ritmo, reforzar conocimientos y revisar el material todas las veces que lo necesites.
Lecciones en vivo por Meet: Cada sesión está diseñada por especialistas del área, entregándote una experiencia de aprendizaje clara, dinámica y fácil de seguir.
Materiales descargables: Complementa tu formación con guías, apuntes técnicos y plantillas listas para descargar y utilizar en tus proyectos.
Ejercicios prácticos: Al finalizar el curso, contarás con ejercicios aplicados que te permitirán poner en práctica lo aprendido y consolidar tus conocimientos.
Durante el curso, contarás con 6 meses de asesoría profesional gratuita, a través de la cual podrás recibir orientación en tus proyectos o resolver dudas específicas sobre los temas tratados en el curso. Podrás agendar reuniones con nuestro equipo de expertos para recibir apoyo personalizado.
Este curso está especialmente diseñado para Ingenieros, Profesionales, Técnicos, Estudiantes y Particulares interesados en adquirir o perfeccionar sus conocimientos en el ámbito de la construcción. Si te desenvuelves en áreas relacionadas con las instalaciones sanitarias, este programa es ideal para ti.
- Conocimientos básicos de AutoCAD: Comprender las funciones esenciales de dibujo, medición y manejo de capas.
- Conocimientos básicos de Excel: Manejo de fórmulas simples, tablas y funciones de cálculo.
Con las ayudantías incluidas, reforzarás tus habilidades en estas herramientas, facilitando un mejor desempeño durante el curso y potenciando tu productividad en tus proyectos.
Nuestros cursos disponibles en modalidad E-Learning
Conozca las novedades de nuestros cursos de capacitación.









