Estás a un paso de aumentar tus habilidades en proyectos de instalaciones a gas con este curso de especialización
Curso Diseño, Proyectos de instalaciones a gas en baja presión Clase 3.
🔥 ¿Qué aprenderé en este curso?
Con este programa adquirirás los conocimientos y herramientas necesarias para desenvolverte de manera profesional en proyectos de gas en baja presión:
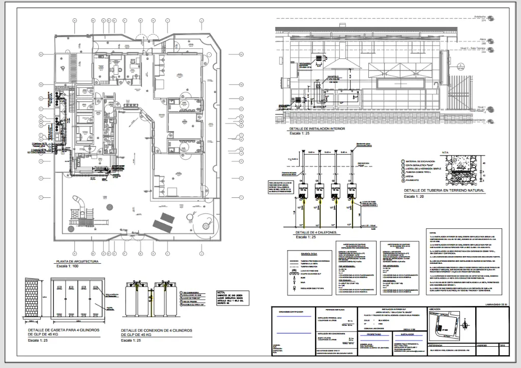
✅ Diseño y cálculo de instalaciones a Gas en baja Presión hasta 60 kw de pontencia instalada, abordando todas sus áreas de aplicación.
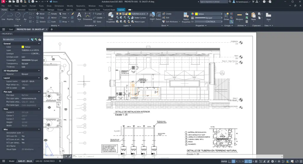
✅ Confección de planos técnicos en AutoCAD para su correcta presentación ante las SEC, minimizando observaciones y rechazos.
✅ Elaboración de especificaciones técnicas y memorias de cálculo, alineadas con cada especialidad del proyecto.
✅ Gestión integral de proyectos, incluyendo trámites y presentaciones ante las distintas Certificaciones Sello Verde y posterior ingreso para la obtencion del TC6 ante la SEC.
🚀 ¡No pierdas esta oportunidad de llevar tus habilidades al siguiente nivel y destacarte en el rubro!
Acceso asincrónico: Una vez inscrito, recibirás vía correo electrónico un enlace personalizado a nuestra plataforma de formación, donde podrás acceder a todos los contenidos del curso, módulos y recursos adicionales en cualquier momento y desde cualquier dispositivo.
Acceso 24/7: Tendrás acceso durante un año completo a la plataforma, lo que te permite avanzar a tu propio ritmo y revisar los materiales cuantas veces necesites.
Lecciones pregrabadas: Cada lección ha sido cuidadosamente estructurada y grabada por expertos, brindando una experiencia de aprendizaje clara y fácil de seguir.
Materiales descargables: Además de las lecciones en video, tendrás acceso a guías, apuntes técnicos y plantillas que podrás descargar para tu uso personal.
Ejercicios prácticos: Al final de cada módulo, se incluirán ejercicios prácticos para aplicar los conocimientos adquiridos.
Durante el curso, contarás con 6 meses de asesoría profesional gratuita, a través de la cual podrás recibir orientación en tus proyectos o resolver dudas específicas sobre los temas tratados en el curso. Podrás agendar reuniones con nuestro equipo de expertos para recibir apoyo personalizado.
Este curso está especialmente diseñado para Ingenieros, Profesionales, Técnicos, Estudiantes y Particulares interesados en adquirir o perfeccionar sus conocimientos en el ámbito de la construcción. Si te desenvuelves en áreas relacionadas con las instalaciones sanitarias y Gas, este programa es ideal para ti.
- Conocimientos básicos de AutoCAD: Comprender las funciones esenciales de dibujo, medición y manejo de capas.
- Conocimientos básicos de Excel: Manejo de fórmulas simples, tablas y funciones de cálculo.
Con las ayudantías incluidas, reforzarás tus habilidades en estas herramientas, facilitando un mejor desempeño durante el curso y potenciando tu productividad en tus proyectos.
Nuestros cursos disponibles en modalidad E-Learning
Conozca las novedades de nuestros cursos de capacitación.









